sophisticates meets innovation
דופלקס תל אביב 200 מ"ר
מיקום
תל אביב
סוג פרויקט
שיפוץ דירה
סטטוס
בביצוע
לקוח
זוג+ 3
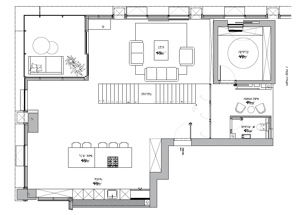
משפחה עם שלושה ילדים, הוא יזם והיא מרפאה בעיסוק, בחרו לאחד שתי דירות במפלסים שונים לדירה אחת מרווחת ומותאמת לצרכיהם. הקו העיצובי שהנחה את הפרויקט היה מינימליזם שמשדר דרמה ושקט יחד. בוצע תכנון מחודש של המפלסים, כולל הזזת תשתיות, כדי ליצור מטבח גדול ונוח לצד סלון רחב שמתאים לאירוח. כל חדרי השינה מוקמו בקומה העליונה, ליצירת אזור פרטי ושקט לבני המשפחה. במפלס התחתון הוקמה קליניקה מעוצבת לקבלת קהל, המאפשרת לשלב בין חיי משפחה לעבודה מהבית בצורה נעימה ומקצועית.



תכנית הפרויקט


