serene modern living
דירה בקרית אונו
מיקום
קרית אונו
סוג פרויקט
שיפוץ דירה
סטטוס
בביצוע, אכלוס מאי 26
לקוח
זוג+ 2
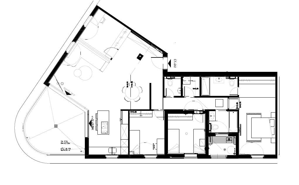
דירה בשטח של 135 מ"ר, במרכז הארץ, במגדל מגורים גבוה עם נוף פתוח ומרהיב, עוצבה עבור זוג עם שני ילדים בסגנון מודרני המשלב מינימליזם עם פונקציונליות מוקפדת. החלל הציבורי בדירה היה מעט צפוף, ויחידת המתבגר שתוכננה במקור לא התאימה לצורכיהם — במקום זאת, העדיפו להקדיש את השטח לאזורי אחסון ופעילות לילדים. פלטת הצבעים שנבחרה כוללת גוונים רגועים של אפור, בז' ועץ טבעי, ליצירת אווירה חמימה, נעימה ומאוזנת. המסדרון הוארך ותוכנן מחדש כדי ליצור חציצה ברורה בין החלל הציבורי לבין החלל הפרטי של חדרי השינה, תוך חיזוק תחושת השקט והאינטימיות. אזור המגורים המרכזי כולל סלון מואר עם חלונות פנורמיים שמכניסים את הנוף פנימה, מטבח מעוצב עם אי פונקציונלי ופינת אוכל מרווחת, המתאימה לאירוח ולמפגשים משפחתיים. חדרי השינה עוצבו ברוגע ובקו נקי, תוך שילוב פתרונות אחסון חכמים ודגש על פרטיות ושלווה. חדרי הרחצה עברו תכנון מחודש ומלא, לאחר שהדירה נרכשה במצב של בנייה קיימת, והותאמו לצרכים החדשים של המשפחה, תוך שדרוג החומרים והפונקציונליות. נגרות מותאמת אישית נפרשת בכל הבית ומשלבת מראה אלגנטי ונקי עם פתרונות אחסון סמויים, המייעלים את ניצול החלל מבלי לפגוע בתחושת המרחב והאסתטיקה.








תכנית הפרויקט


