warm elegant and cozy
פתח תקווה 90 מ"ר
מיקום
פתח תקווה
סוג פרויקט
דירת קבלן
סטטוס
בביצוע, אכלוס אוגוסט 27
לקוח
זוג
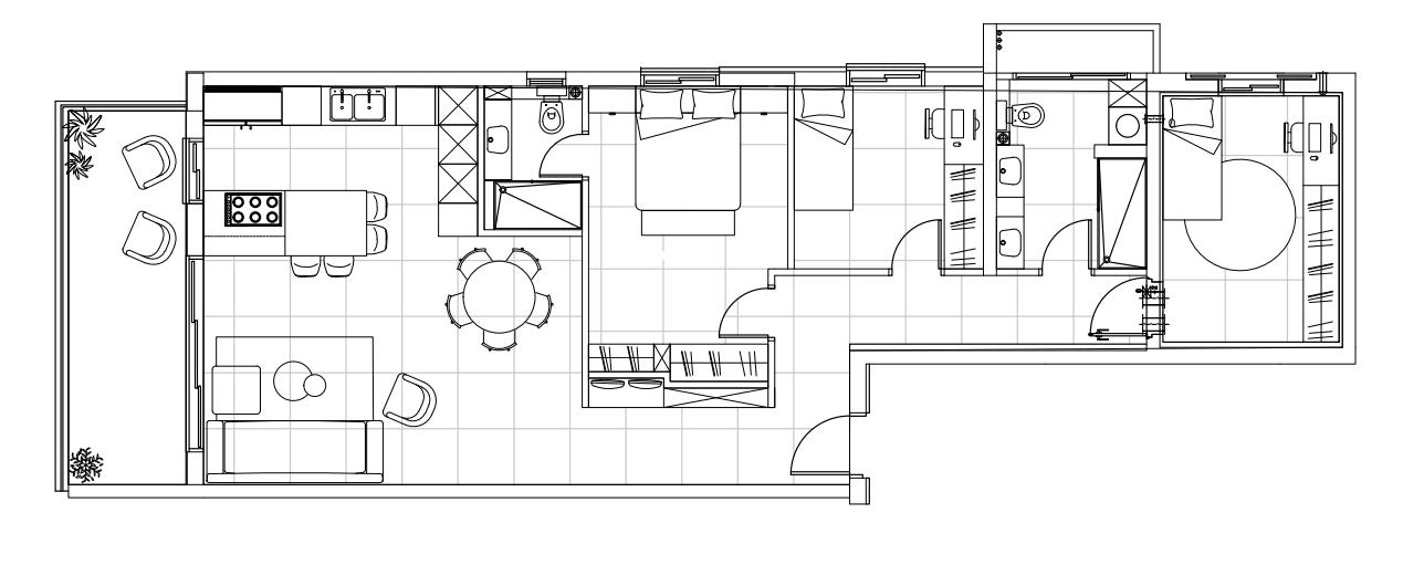
רוכשי הדירה, שרכשו את דירתם הראשונה – דירת קבלן בפתח תקווה – ביקשו להתאים אותה לצורכי משפחתם הצעירה, במסגרת תהליך שינויי דיירים. הדירה עוצבה ותוכננה מחדש כך שתתאים לחיי משפחה עם ילדים, תוך דגש על אירוח תדיר ומטבח מאובזר ומתוכנן בקפידה. במהלך התכנון, שונה והוגדל חדר ההורים כדי ליצור סוויטת הורים מרווחת ומפנקת, יחד עם הרחבה משמעותית של חדר הרחצה הצמוד. חדרי הילדים תוכננו כך שיתאימו בשלב הראשון לילד אחד ובהמשך גם לשניים, תוך שמירה על פתרונות פונקציונליים בתוך כל חדר – שילוב של ארון, פינת תלמיד ואזור עבודה מרווח. בדירה שולבו שתי פינות עבודה נפרדות, שנועדו לאפשר לכל אחד מבני הזוג לעבוד מהבית בשקט ובנוחות. החלל הציבורי עוצב כך שכל הפונקציות נמצאות בתקשורת ישירה זו עם זו – ניתן לארח באי המטבח עם ישיבה נמוכה ונעימה, או בפינת אוכל מרווחת הנפתחת בקלות לאירוח רחב. הכניסה לבית עוצבה עם פתרונות אחסון חכמים, המשלבים מקום לחפצים יומיומיים, לכלי נוי שבני הזוג ביקשו להציג, וספסל ישיבה עם אחסון מובנה להתארגנות נוחה. במסדרון תוכנן ארון שירות נוסף, שאִפשר להרחיב ולאוורר את חדר הרחצה הכללי ולהפוך אותו לנוח ומזמין יותר.






תכנית הפרויקט

